This project show cases modern luxury with open spaces, panoramic views, and a neutral palette. Plush furnishings, contemporary art, and strategic lighting create a sophisticated yet inviting atmosphere.

LOCATION
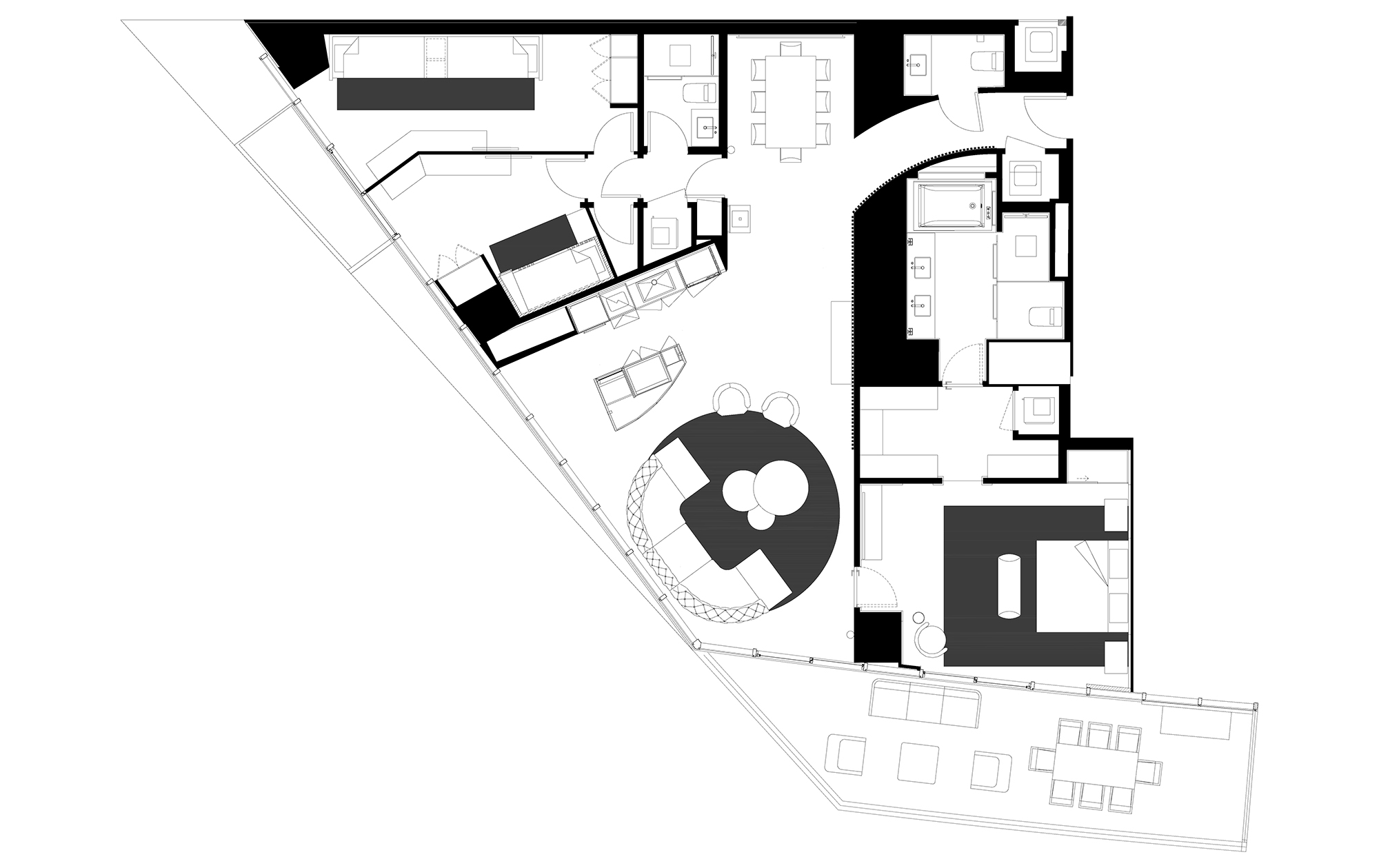
ARMANI RESIDENCES
Sunny Isles Beach, FL 33108

SIZE
2,682 Sq.Ft

DATE
October

PHOTOGRAPHER
Emilio Collavino













