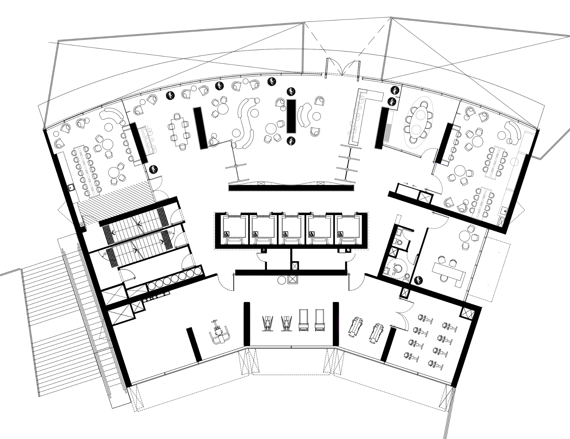
An evolution of openness and fluid living. Soft forms and curated furniture create a more relaxed and organic spatial language. Natural light becomes a central feature, enhancing textures and tones throughout the day.

LOCATION
Av. Manquehue Norte 958
Las Condes. Santiago, Chile

SIZE
562 M²

DATE
2021