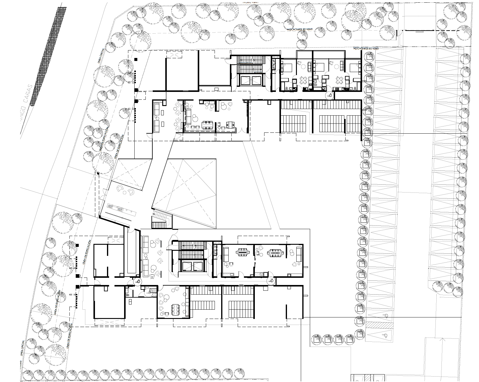
Defined by its warmth and material continuity, this project creates a welcoming and grounded atmosphere. Wood elements and soft lighting establish a strong visual identity while maintaining subtlety. The layout encourages stillness and pause.

LOCATION
Jose Domingo Cañas 445
Santiago, Chile

SIZE
843 M²

DATE
2021