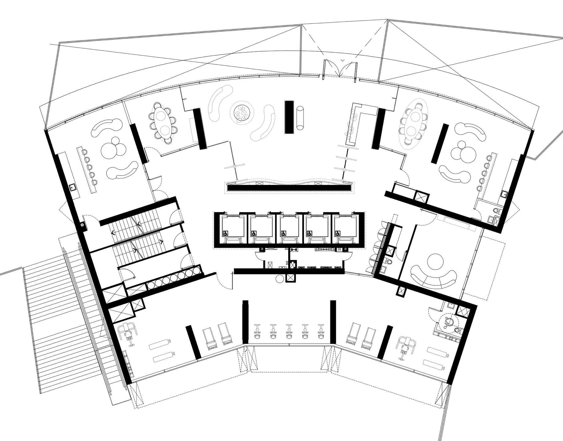
A contemporary space defined by openness and natural light. Large surfaces and clean lines create a sense of calm continuity, while subtle material contrasts add depth. The design emphasizes comfort through simplicity, allowing the space to feel both refined and approachable.

LOCATION
Av. Manquehue Norte 958, Las Condes,
Region Metropolitana, Chile

SIZE
1,261 M²

DATE
2019